Bought with F.O. Bailey Real Estate
$395,000
For more information regarding the value of a property, please contact us for a free consultation.
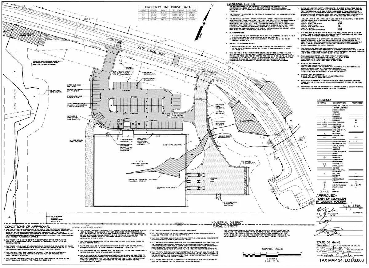
65 Olde Canal WAY Gorham, ME 04038
6.33 Acres Lot
Key Details
Sold Price $395,000
Property Type Land
Listing Status Sold
MLS Listing ID 1463240
Sold Date 05/20/21
HOA Y/N No
Annual Tax Amount $6,314
Tax Year 2019
Lot Size 6.330 Acres
Acres 6.33
Source Maine Listings
Property Description
Great property fully designed ready to go just apply for your permits.The design currently done is for a 45,000+/- SF building. This lot is ready to go! Start construction quickly. Public Sewer, Public Water. Natural Gas at curb as well as electricity. Great Investment Opportunity!!!
Location
State ME
County Cumberland
Zoning IND
Exterior
Parking Features Paved
View Y/N No
Street Surface Paved
Building
Lot Description Cul-De-Sac, Level, Open Lot, Near Shopping, Near Turnpike/Interstate, Near Town
Sewer Public Sewer
Water Public
Others
Restrictions Unknown
Read Less
Want to know what your home might be worth? Contact us for a FREE valuation!

Our team is ready to help you sell your home for the highest possible price ASAP



