Bought with Dwelling In Maine
$219,000
For more information regarding the value of a property, please contact us for a free consultation.
281 Main ST S Searsmont, ME 04973
1 Bed
1 Bath
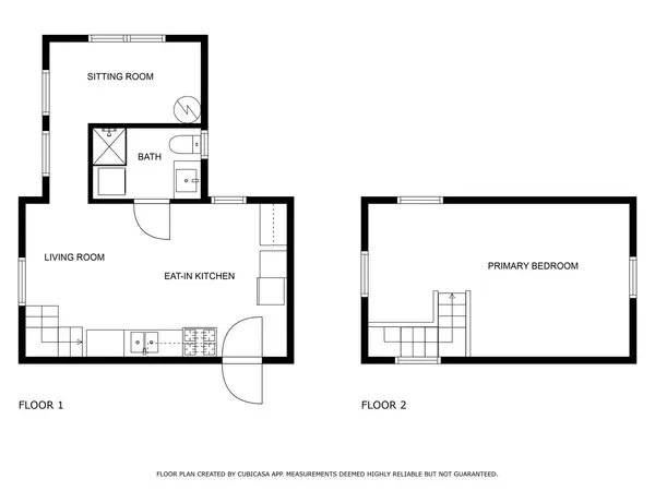
573 SqFt
Key Details
Sold Price $219,000
Property Type Residential
Sub Type Single Family Residence
Listing Status Sold
Square Footage 573 sqft
MLS Listing ID 1594083
Sold Date 07/23/24
Style Bungalow,Other Style
Bedrooms 1
Full Baths 1
HOA Y/N No
Abv Grd Liv Area 573
Year Built 1990
Annual Tax Amount $1,233
Tax Year 2023
Lot Size 5.200 Acres
Acres 5.2
Property Sub-Type Single Family Residence
Source Maine Listings
Land Area 573
Property Description
Charming tiny home in Searsmont. Experience the beauty of efficient living in this delightful 573+/- sq. ft. home. Crafted with stunning wood touches throughout, this cozy abode offers all the space you need for comfortable year-round living.
Relax and rejuvenate in the separate two-room wood-fired sauna, a perfect spot on cool days and nights. Outside, the lot is spacious with 5.2+/- acres, complete with gorgeous landscaping, privacy fencing, and a cozy fire pit - ideal for unwinding or entertaining under the stars.
Located just 20 minutes from downtown Belfast, you'll enjoy easy access to the charming coastal lifestyle while savoring the privacy of your own expansive yard.
**Due to the level of interest, Seller has requested that any/all offers be submitted by 12:00 pm on Tuesday, June 25th with a 24 hour response time.
Location
State ME
County Waldo
Zoning Residential
Rooms
Basement None, Not Applicable
Master Bedroom Second
Living Room First
Kitchen First
Interior
Interior Features Shower
Heating Direct Vent Heater
Cooling None
Fireplace No
Appliance Washer, Refrigerator, Gas Range, Dryer
Laundry Laundry - 1st Floor, Main Level
Exterior
Parking Features 1 - 4 Spaces, Gravel
Fence Fenced
View Y/N Yes
View Scenic, Trees/Woods
Roof Type Metal
Street Surface Paved
Porch Porch
Garage No
Building
Lot Description Landscaped, Wooded, Rural
Sewer Private Sewer, Septic Design Available
Water Private, Well
Architectural Style Bungalow, Other Style
Structure Type Wood Siding,Wood Frame
Schools
School District Rsu 71
Others
Energy Description Propane
Read Less
Want to know what your home might be worth? Contact us for a FREE valuation!

Our team is ready to help you sell your home for the highest possible price ASAP







